Lot 857 Prosecco Avenue
Angle Vale (The Entrance)
$650,000

Fixed-price home & land package

Ask us about turnkey options
On Hold
| Home Areas | m² |
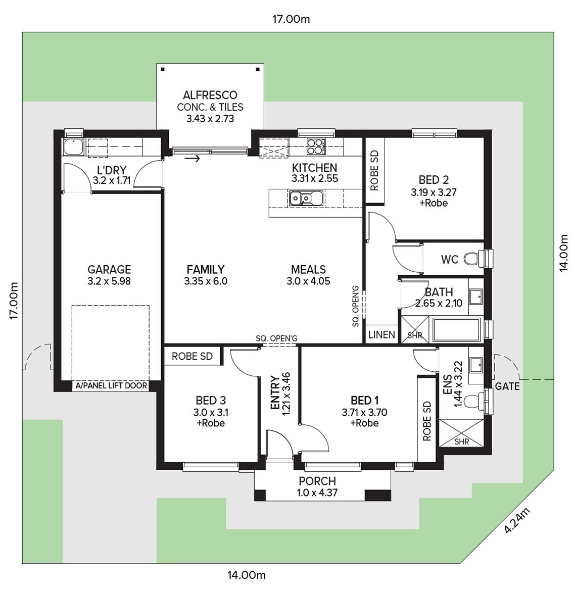
| Home Total Area | 154.9 |
| Land |
| Land Area | 284m² |
| Builder |
| Builder | Fairmont First |
| Design Name | Florence Mk3 |
| Features |
| Choice of four colour schemes carefully crafted by expert interior designers |
| 3.32kW solar package |
| Alfresco with slab and tiles |
| 2700mm high ceilings throughout |
| Downlights throughout entry & living (battens to remainder) |
| Reverse cycle ducted air conditioning |
| 2 coat paint system |
| Built-in robes with mirror doors |
| Fixed siteworks & footings |
| Laminate & carpet flooring |
| 67mm bevel skirting/arch |
| Cornice 90mm Cove |
| Entry door: Corinthian Madison PMAD104 with Translucent Glass |
| Entry door hardware: Trilock Angular Leverset Satin Chrome/Matt Black (to match scheme) |
| Internal doors: Plain flush panel |
Built by Fairmont First Builders Licence No. 188013. The land in this house and land package is not owned by the builder. Information correct at time of publishing. Images for illustration purposes only. Land subject to availability. This house & land package may be subject to Full Development Approval. #‘Fixed price’ refers to the build and land costs on an allotment chosen by the builder specifically. While every effort is made to retain a Fixed Price unknown on-site costs may impact on the final price of your home. This includes but is not limited to selections, engineering, bushfire, council requirements, retaining and any other site costs. Information correct at time of lodging and may change without notice. All images displayed in this brochure, including floor plans and facades, are to be used as a guide only and may not be to scale. All images are for illustration purposes only and may not replicate actual homes. Items shown in imagery including additional fixtures and fittings, landscaping, flooring, decorative items and furniture are not included in the standard homes price. For detailed home pricing, please talk to a sales consultant.